Townhouse

Arkitektur- og Designhøgskolen i Oslo. 2022. 2. semester: "Studio". Et samarbeidsprosjekt med Guro Kalstveit.

Oppgaven: Dette var et transformasjonsprosjekt der vi skulle tegne en bolig for to husholdninger som skulle har et areal for felles benyttelse. Innenfor disse føringene skulle vi selv definere og formulere et mer spesifikt program. Boligen skulle tegnes inn i en eksisterende betongkonstruksjon på Ensjø i Oslo (Gladengveien 8).
Et skissediagram som viser de ulike værforholdene på tomten. Det andre diagrammet viser også fordelingen mellom de ulike husholdningene. 
Townhouse nr. 16 på Ensjø rommer et hjem for en familie på fem og et kjærestepar i 50-årene. Etter at barna deres flyttet hjemmefra syntes paret at det fort ble tomt i huset, dermed var et delt townhouse på Ensjø ideelt for dem. Familien setter stor pris på å ha paret rett i nærheten. På taket av huset og i hagen deres gror de pil sammen. Denne pilen benytter de seg av under pilflettingskursene som de holder for folk i nærmiljøet.
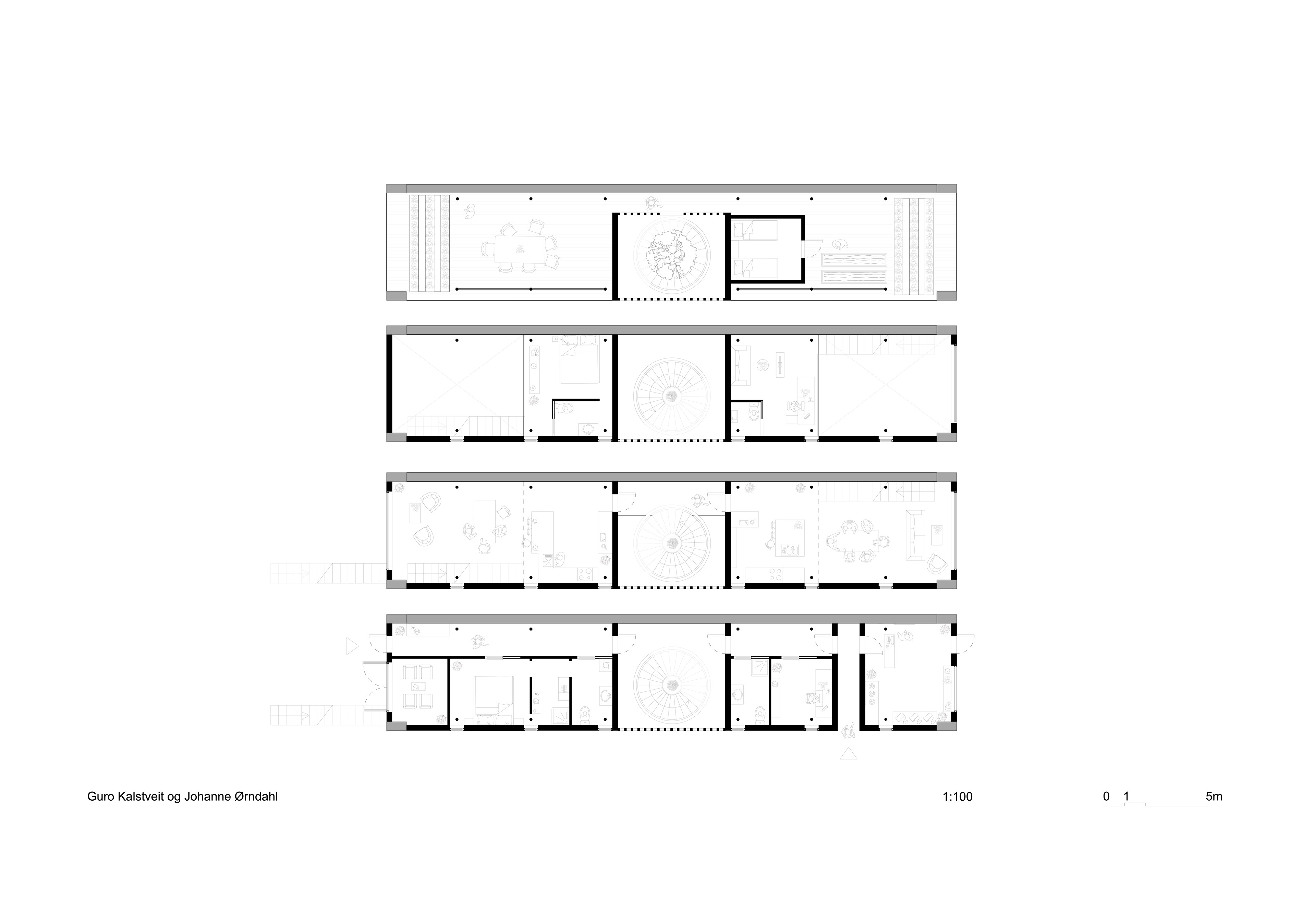
Planer for de ulike etasjene i townhouset. Førsteetasje benyttes hovedsaklig til soverom og bad. Halve førsteetasjen til paret benyttes som utsalgssted for pilflettingen deres. I andre etasje har de hver sitt kjøkken og stue. Der har de også en mesanene med soverom og toalett. På toppen er det en felles takterrasse.
Snitt gjennom leilighetene. 
Situasjonskart som viser konteksten. Townhouset ligger i en rekke med 20 andre like bygg.
Tilbake til toppen