Tilleggsscene for Nationaltheatret

Arkitektur- og Designhøgskolen i Oslo. 2023. 4. semester: "Offentlig bygning". Et samarbeidsprosjekt med Hedda Lie Gullestad. ​​​​​​​

Oppgaven: Vi skulle utvikle en helt ny tilleggsscene for Nasjonaltheatret i Oslo. Det pågår en politisk debatt om fremtiden til Nasjonalteateret. I dette scenarioet vil fremtidens Nasjonalteater ha to større scener. En scene som er dagens Nasjonalteater, som kan ivareta historie og tradisjon, og en ny scene som kan ivareta nye teateruttrykk og teatertekniske løsninger med fremtidsrettede muligheter.
Vi startet tidlig med et ønske om et uformelt teater, og jobbet lenge med å få til dette med en tradisjonell teaterscene, - altså med en scene, en teatersal og et scenetårn. Etter å ha studert hva uformelle og formelle rom er, kom vi frem til at det vi i dag ser på som et teater er nærmest bestemt formelt. Dette førte til at vi så på mulighetene for å utfordre hva et teater er, hvilken form det har og hvor det oppstår. Definisjonen på et teater er tross alt bare en form for scenekunst hvor hensikten er å framstille eller fortelle en historie, ide eller følelser for et publikum. 
Siden dette er en tilleggsscene, og det gamle Nationaltheatret vil fortsette å bli brukt som en tradisjonell scene, ønsker vi å tilføre noe nytt til Nationaltheatret som kan utvide deres målgruppe. Vi har skapt et bygg tilpasset en teaterform som på engelsk har betegnelsen “immersive theatre”, som på norsk kanskje kan oversettes til omsluttende eller oppslukende teater. 
Ut ifra tomtens karakter og plassering så vi et behov for et uformelt bygg som et pusterom fra de mektige institusjonene i området. Vi har plassert oss nord på tomten, midt mellom de eksisterende bygningene. Det var viktig for oss med mellomrom mellom både eksisterende bygg og de nye volumene, for å skape inviterende uterom med ulike kvaliteter. Teateret vårt er delt opp i tre ulike, nette volumer. ​​​​​​​
Vi har plassert hovedbygningen mot Kristian Augusts gate i nord for å fullføre gateløpet og åpne opp mot Kristian IVs gate med universitetsparken i sør. Dette er for å skille av tomten med en “byside” og en større “parkside” med gode solforhold. I tillegg er de to mindre volumene plassert strategisk for å skape en mer skjermet uteplass på midten av tomten. Tilleggsvolumene rommer et galleri og en servering. Vi har jobbet med de ulike typer arealene mellom byggene, hvor mellomrommene skaper uterom med ulike kvaliteter. Vi har hovedsakelig valgt å ikke legge inn definerte gangveier, men ønsker at disse skal skapes naturlig av menneskelig ferdsel, for eksempel ved at folk tar raskeste vei til jobb gjennom tunet. Uterommet er laget for å skape individuelle adkomster og opplevelser.
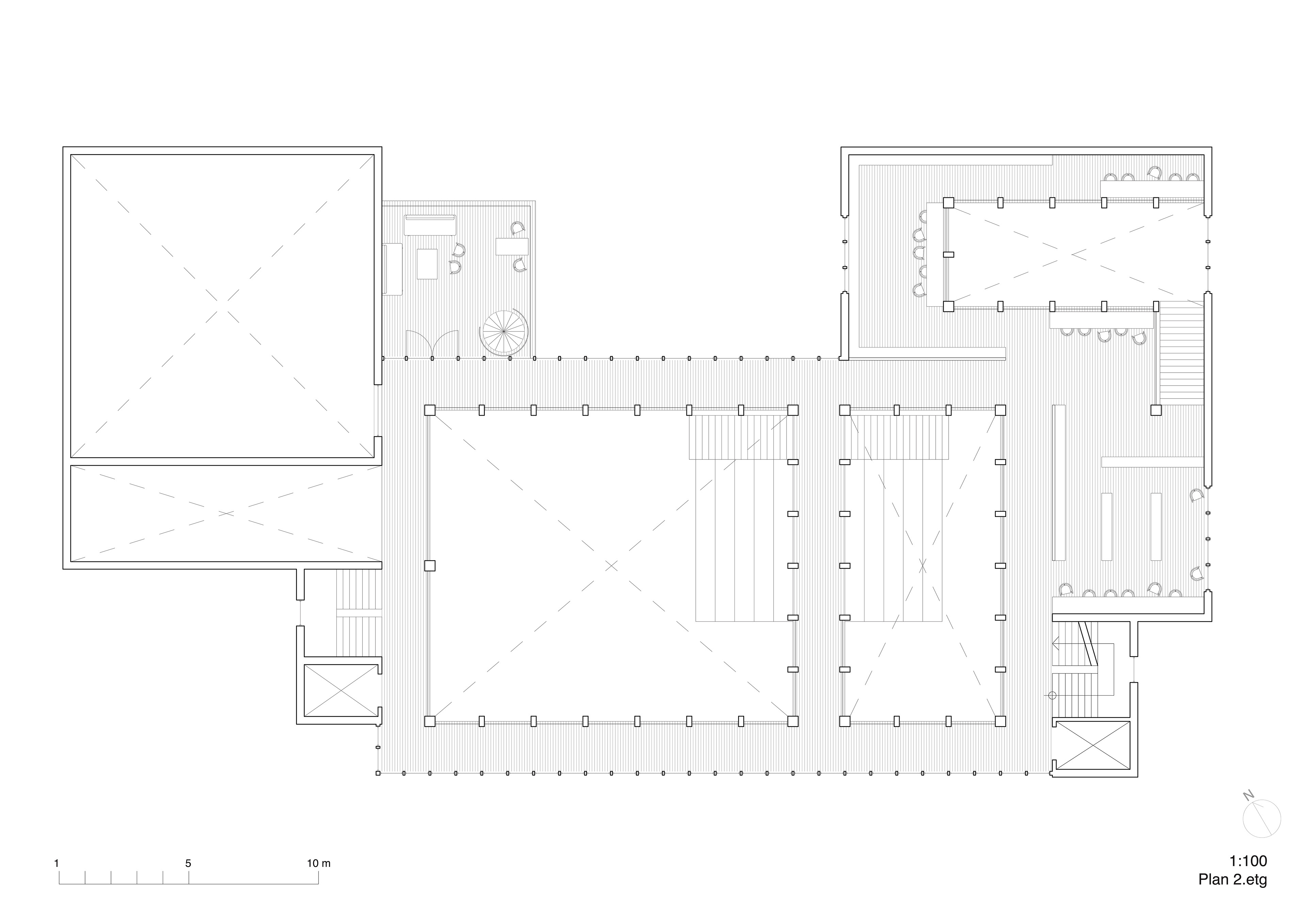
Her er oversikten over de tre etasjene over bakken i hovedbygget. Verkstedet strekker seg fra kjelleren opp til andre etasje, med høyt tak. Biblioteket går over to etasjer. Cafe i første etasje. Kontorer i tredje etasje. Og det store hovedrommet med mesanin, er uprogrammert og skal fungerer som et torg og en forlengelse av parken utenfor. ​​​​​​​
Det var viktig for oss at ferdselen inn og ut av teateret er sømløs og lavterskel, derfor har vi lagt inn mulighet for ankomst fra flere sider. Dette skaper også ulike opplevelser, som med uterommet. For å viske ut skillet mellom inne og ute kan store deler av fasaden i hovedrommet åpnes. ​​​​​​​
Bygningen vår ligger mye lavere enn de omkringliggende byggene, for å ha en mer menneskelig skala. Vi har en fasade i tre fordi det oppleves som noe kjent, kroppslig og menneskelig. Det spiller også godt med ønsket vårt om et uformelt teaterbygg hvor alle føler seg velkommen. ​​​​​​​
Det er viktig med ulike arkitektoniske kvaliteter i de forskjellige rommene, ettersom at det er det som skaper scenen. I verkstedet ønsket vi en industriell følelse, og dette har vi fått til med vegger og dekker av betong, store industrielle vinduer og høyt under taket. Biblioteket består åpenbart av mye bøker og bokhyller som skaper vegger og skiller. I tillegg er det i store deler kun 3 meter under taket. Dette gjør biblioteket mer intimt. 
Illustrasjonen viser et detaljsnitt gjennom hovedrommet. Her ser vi mesaninen, bjelken som stopper, samt at bakken går nærmest uavbrutt i skillet mellom ute og inne. Opprisset er av den frittliggende restauranten på tunet. 
Ønsker du mer ro for lesingen kan du gå videre opp trappen og sette deg på en av leseplassene i biblioteket. Biblioteket fører direkte ut på mesaninen, hvor du kan gå videre ut på takterrassen til cafeen. Vi ser for oss at mesanin kan brukes både som et oppholdsareal, gangareal og publikumsareal til tider.  
Her har vi illustrert et eksempel på hvordan en forestilling i verkstedet kan se ut. 
Som en typisk tilreisende teatergruppe, tar du trappen eller heisen opp i 3. etg hvor det er et åpent kontorlandskap. Her har man plass til å gjøre siste finish på både manus, kostymer og masker. 
Galleriet som er plassert på vestsiden av tunet, tilbyr muligheter for utstillinger av kjente og ukjente kunstnere, et selskapslokale som kan leies ut til private arrangementer, forelesninger, konserter eller intime forestillinger. Veggene kan skyves opp etter behov, for å utvide galleriet utenfor de gitte veggene. 
I dette detaljsnittet ser man hvordan galleriet er bygd opp med søyler, skyvedører, og et frostet glassfelt på toppen. 
Serveringsstedet til høyre på tunet skal være et sentralt møtepunkt for både besøkende, skuespillere, arbeidere og forbipasserende. Bordene glir ut på tunet, og blir en del av det som skjer utenfor.
Tilbake til toppen