Sofienberggata 58

Arkitektur- og Designhøgskolen i Oslo. 2022. 3. semester: "Bybolig". Et samarbeidsprosjekt med Sofie Holme. ​​​​​​​

Oppgaven: Semesteret "Bybolig" har en overordnet intensjon om å undersøke fysiske rammer for det å bo, samt å utvikle og anerkjenne arkitektoniske kvaliteter i byen. Hvordan kan vi bygge boliger i dag som danner gode rammer for det å leve og bo i byen - som samtidig ivaretar stedets kvaliteter og sikrer at bygningen har en lang levetid? Vi fikk i oppgave å utvikle et forslag til en bybolig på en tildelt tomt. Vi jobbet med tomten Sofienberggata 58. 
Området karakteriseres med mange frittliggende lamellbygg organisert i parallelle rekker. Selve tomten i Sofienberggata oppleves som solrik, romslig og sentrumsnær. 
På den ene siden av tomten, mot vest, er det en trafikkert bilvei, mens på den andre siden, mot øst, befinner det seg en stor grønn skog med parkområder og barnehage. Bygget vårt gjenspeiler områdets lamellbebyggelse og ligger som et skille mellom de to ulike sonene. Bygningen tar hensyn til eksisterende lamellbebyggelse, følger aksen til de ytre lamellene og avgrenser bakgården med et lite tilbygg.
Bygningens utforming og plassering på tomten tar hensyn til eksisterende lamellbebyggelse, følger aksen til de ytre lamellene og avgrenser bakgården med et lite tilbygg. Bygget blir liggende som et skille mellom de to ulike sonene; skog og bilvei. 
Dette er skisser fra tidlig ide-fase der vi blant annet har vært inspirert av buen, og måten den kan være med og skape spennende inne- og uterom. 
Det var viktig for oss at balkongene skal være inntrukket for å beholde den rette fasaden samt å skape private balkonger med avskjerming fra trafikkstøy. Resultatet er en fasade som både kan oppleves flat og som står i stil med omkringliggende lamellbebyggelse, men også som en fasade med mer dybde og spenning.
Totalt inneholder bygget 12 leiligheter med 4 leiligheter per plan. Fire av leilighetene er fireromsleiligheter på ca. 90 kvm, og den ene endeleiligheten er toroms på ca. 45 kvm. Vi har lagt inn en WC-kjerne i midten av leilighetene for å frigi fasadeplass til soverommene. For å gjøre leilighetene mer fleksible har vi lagt inn foldedører i oppholdsrommet, og skyvedører rundt kjernen. Dette gjør det mulig å skape rom som kan håndtere ulike situasjoner.
Interiørbilder fra modellen vi laget i skala 1:20. På bildene ser man hvilken effekt den perforerte teglsteinen gir for rommene. På bildene ser man også noen av de smarte løsningene vi har lagt inn, som blant annet en lang pult som deles mellom de to små soverommene. Man ser også skyvedørene i oppholdsrommet som kan brukes til å dele av rommet på flere ulike måter. Leiligheten er tilpasset familier som vil bo i byen, men fortsatt få plass til privatliv. 
Etter tomtebefaringene merket vi at området mangler mer liv og aktivitet. Derfor ønsker vi at første etasje av bygget skal gi noe tilbake til området og livet på gata. Samtidig unngår vi leiligheter i første etasje med lite avskjerming og dagslys. Vi har valgt å lage lokaler som passer til blant annet kontor, kafé, utstilling og butikker.
Her har vi snittet gjennom oppholdsrommet i de store endeleilighetene. Snittet viser blant annet livet i stua, og hvordan spisestuen kan utvides til balkongen. Kjøkkenet er plassert midt i rommet, noe som gjør veien kort til både spisebordet og til sofaen.
Bygget er dekket i lys, beige tegl med vindusrammer i brunt tre. Fasaden svinger seg inn og ut, noe som skaper buede vegger både på̊ innsiden og utsiden av fasaden. Det er også satt av åpninger enkelte plasser i teglforbandet for å slippe inn et lysspill og for å skape en form for avskjerming.
Der fasaden er trukket inn har vi lagt inn små balkonger. Hver leilighet har to balkonger og disse er plassert på hver sin side av det lange, gjennomgående oppholdsrommet. Dette gir de tilgang på både morgensol og kveldssol i samme rom. 
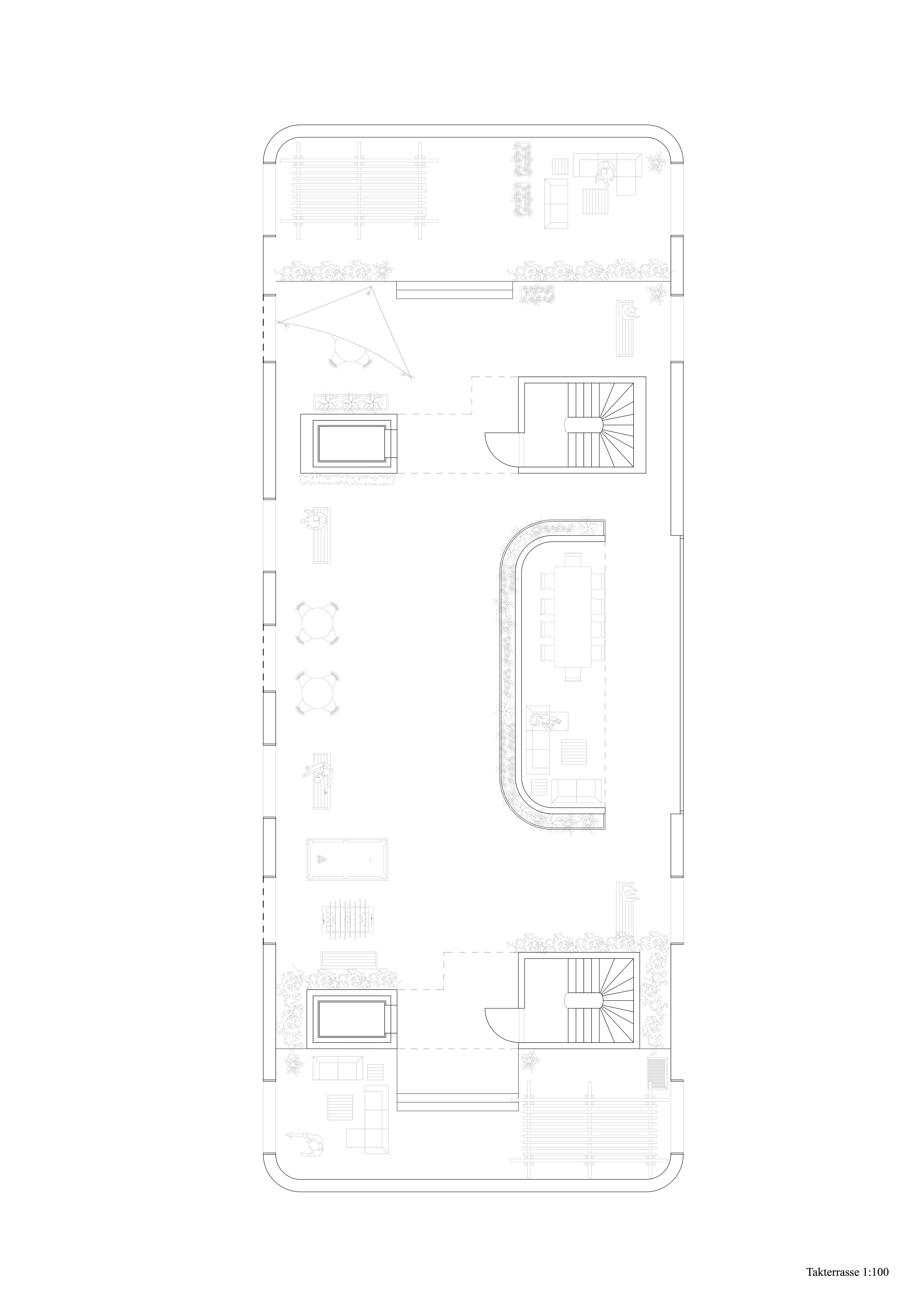
På toppen av bygget har vi lagt inn en takterrasse med opptrukne vegger. Tanken er at dette skal bli et felles utendørs oppholdsrom for beboerne som er mer privat og har andre kvaliteter enn balkongene, bakgården og parken. Takterrasse har både små private soner og store soner for sosialisering med naboene. Mot øst har vi trukket fasadeveggen innover for å skape en sone med utsikt mot den grønne skogen. 
Tilbake til toppen